
Feuerwehrhaus Stuhlfelden
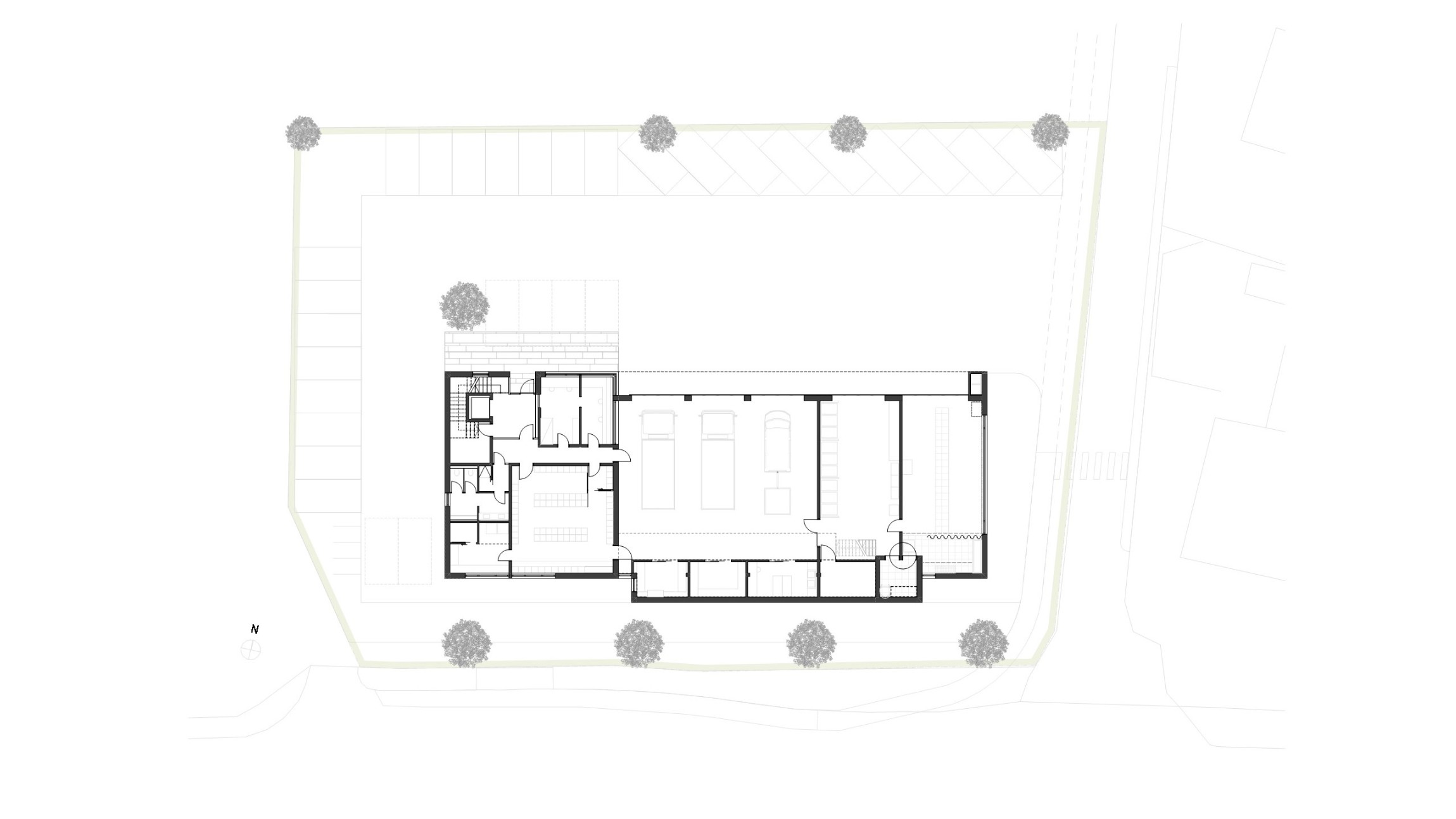
Geplant ist die Errichtung einer Feuerwehrzeugstätte der Gemeinde Stuhlfelden. Der Baukörper gliedert sich in den westlichen, zweigeschossigen Verwaltungsteil sowie die östlich gelegene Fahrzeughalle mit angeschlossenen Nebenräumen und Schlauchturm.
Der Schlauchturm bildet im Verbund mit den Nebenräumen einen L-förmigen Bauteil, der in der strassenseitigen Ansicht die besondere Funktion des Gebäudes betont sowie eine Landmark entlang der B168 Mittersiller Strasse bildet.
Der Verwaltungskörper beinhält im wesentlichen sämtliche organisatorischen Bereiche der Einsatzkoordination, wie Kommando-, Bereitschafts- , Besprechungs- und Nachrichtenräume. Weiters die zur Fortbildung nutztbaren Räume wie den Jugend- und Multifunktionsraum. Ausserdem die grundlegenden Funktionen der Garderoben, Waschräume und WC Kerne.
Die Fahrzeughalle ist für vier Stellplätze dimensioniert, wovon einer gleichzeitig als Waschbox geeignet ist. Die Waschbox ist verbunden mit dem Bereich der Personen- und Ausrüstungsreinigung nach einem Einsatz (Stiefel-, Bekleidungs-, Schlauchwäsche). Die Anordnung der Funktionen erfolgte in Abstimmung mit der ortsansässigen Feuerwehr bzw. einer Arbeitsgruppe unter besonderer Berücksichtigung der Richtlinien des österreichischen Bundesfeuerwehrverbandes.


